Arrowhead – Bright, Efficient Living for All Seasons
Comfort, Savings, & Style
in One Smart Home
A two-story energy efficient House with open living spaces, exceptional comfort, and up to 90% lower energy use.

Arrowhead

Spacious Two-Storey energy efficient home for Modern Family Living

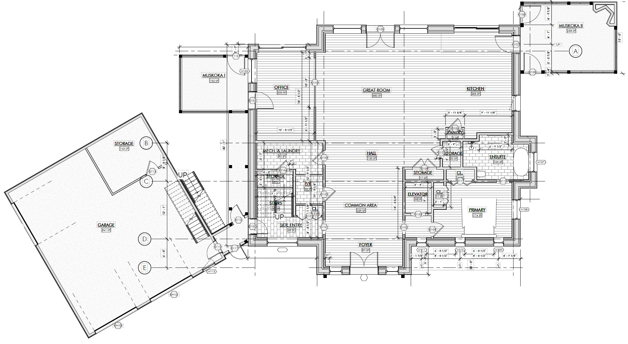
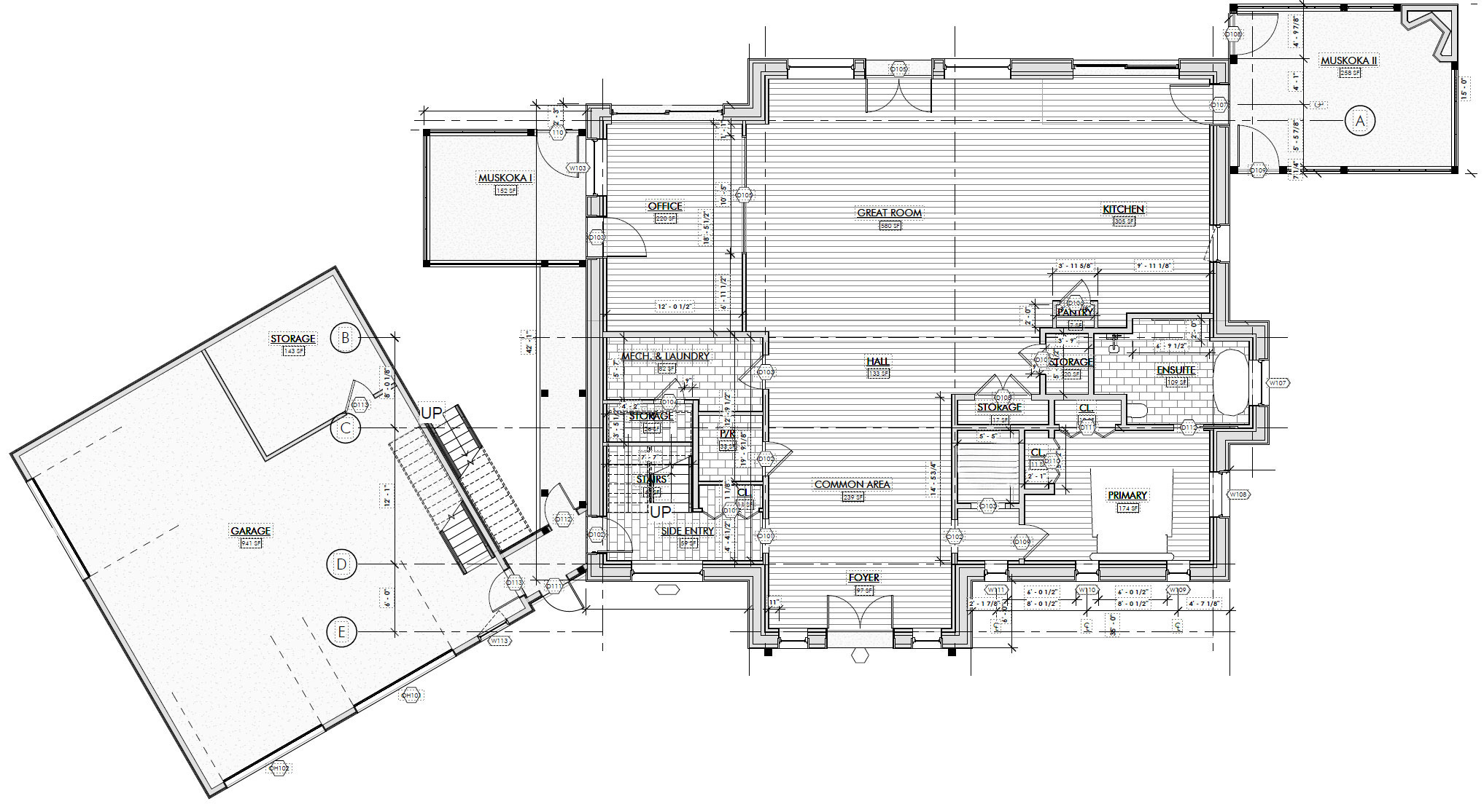
The Arrowhead combines contemporary design with exceptional performance, offering a light-filled, open-concept layout ideal for family life. Built with Quantum Passivhaus’ THX Thermal Extreme panels (R-61, 0.6 ACH50), it delivers up to 90% less heating and cooling energy use than a code-built home.

Its generous two-storey plan includes multiple bedrooms, expansive living areas, and seamless indoor-outdoor connection—perfect for both everyday living and entertaining.

Generous two-storey layout – Spacious open-concept living areas ideal for families and entertaining
Exceptional thermal performance – THX Thermal Extreme panels deliver R-61 insulation and 0.6 ACH50 airtightness for ultra-low energy use
Light-filled design – Large, well-placed windows maximize natural light while maintaining energy efficiency
Square Footage: 6,102
Garage: 2,443
Bed / Bathrooms : 3 bedrooms, 2.5 bathrooms
Stories: 2 storeys
Panel System : THX Thermal Extreme
Air Tightness : 0.6 ACH50
R-Value: R-61


Ready to Build Your Dream Home?

Start with a model you love. Customize it to fit your life. Move in sooner than you think.
Slash energy bills by up to 90% – Superior insulation and airtight design
Build up to 75% faster – Precision off-site manufacturing
Future-proof your home – Exceeds 2030 energy standards now