Beach House– Lakeside Living, Year-Round Comfort
Expansive windows,
lakeside views with natural light.
A bright, airy energy efficient house designed for lakeside living—offering stunning views, year-round comfort, and dramatically lower energy costs.

BEACH HOUSE

Modern Coastal Living with Energy Efficient Performance

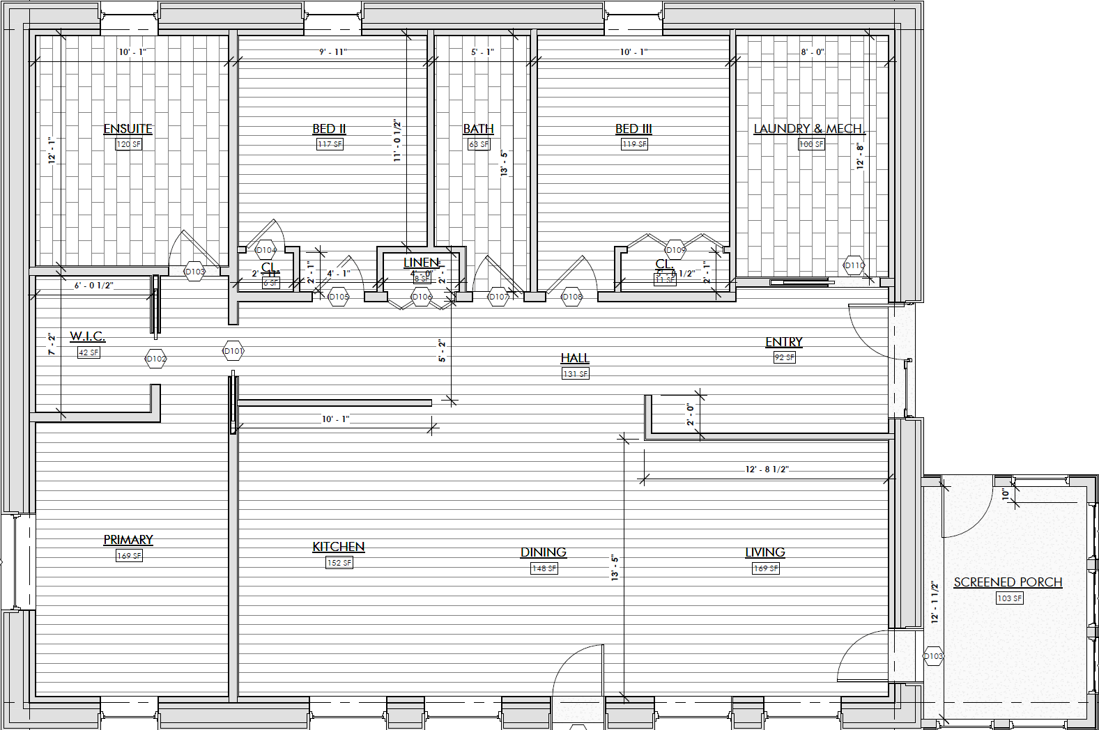
This single-storey coastal home blends modern architecture with ultra-efficient construction, delivering year-round comfort and oceanfront views. Built with Quantum Passivhaus’ THX Thermal Extreme panels (R-61, 0.6 ACH50), it drastically reduces heating and cooling costs while providing a healthy, comfortable environment.

Expansive fixed windows flood the interiors with daylight and frame panoramic views, while the open-concept layout connects living, dining, and kitchen spaces for effortless entertaining.

Bright, open living – Expansive fixed windows capture views and natural light without sacrificing efficiency
Coastal comfort – High-performance panels and airtight design maintain stable indoor temperatures year-round
Effortless flow – Single-level, open-concept layout perfect for both relaxed living and hosting guests
Square Footage: 1,952 ft²
Bed / Bathrooms : 3 bedrooms, 2.5 bathrooms
Stories: 1 Storey
Panel System : THX Thermal Extreme
Air Tightness : 0.6 ACH50
R-Value: R-61


Ready to Build Your Dream Home?

Start with a model you love. Customize it to fit your life. Move in sooner than you think.
Slash energy bills by up to 90% – Superior insulation and airtight design
Build up to 75% faster – Precision off-site manufacturing
Future-proof your home – Exceeds 2030 energy standards now