Granite Ridge – Energy Efficient Performance, Everyday Comfort
BRIGHT, open living
WITH A COVERED ENTRY
A thoughtfully designed home with an inviting covered porch, efficient single-level layout, and a light-filled interior. High-performance construction keeps energy costs low and indoor comfort consistent in every season.

GRANITE RIDGE

Spacious Single-Story energy efficient home for Year-Round Comfort

This modern single-level home offers the perfect balance of style, performance, and comfort. Built with Quantum Passivhaus’ QP 16″ Wall Panels and service cavity (R-61 walls, R-80 roof, 0.6 ACH50), it delivers exceptional insulation and airtightness—cutting heating and cooling energy use by up to 90% compared to a code-built home.

With expansive windows, generous open-concept living spaces, and seamless indoor-outdoor flow, Granite Ridge is designed for effortless living in every season—keeping you warm in winter, cool in summer, and comfortable all year long.

Energy-Smart Design – Ultra-insulated walls and roof maintain ideal indoor temperatures with minimal energy use
Bright, Open Living – Large, strategically placed windows bring in abundant daylight without sacrificing efficiency
Effortless Flow – Spacious single-level layout connects living, dining, and kitchen for easy entertaining and family life
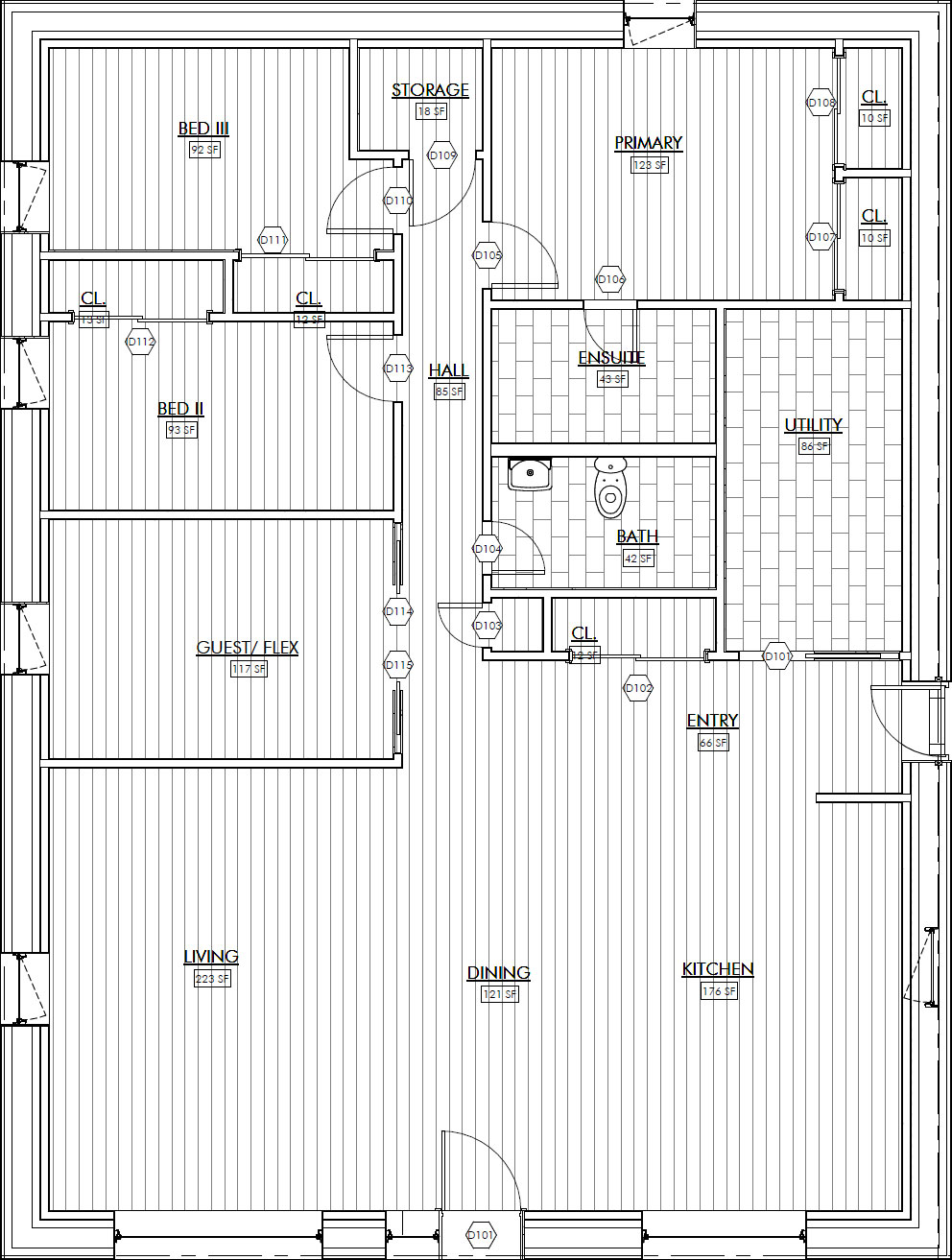
Square Footage: 2,291
Bed / Bathrooms : 3 bedrooms, 2 bathrooms
Stories: 1 storey
Panel System : QP 16" Wall Panels with service cavity
Air Tightness : 0.6 ACH50
R-Value: R-61 (walls), R-80 (roof)


Ready to Build Your Dream Home?

Start with a model you love. Customize it to fit your life. Move in sooner than you think.
Slash energy bills by up to 90% – Superior insulation and airtight design
Build up to 75% faster – Precision off-site manufacturing
Future-proof your home – Exceeds 2030 energy standards now