Prairie Smoke — Family living made effortless.
SPACIOUS DESIGN
BUILT FOR EFFICIENCY.
A two-storey energy efficient house that balances family-sized living with year-round comfort—delivering lower energy bills, healthy indoor air, and lasting performance.

Prairie Smoke

Smarter design for everyday living.

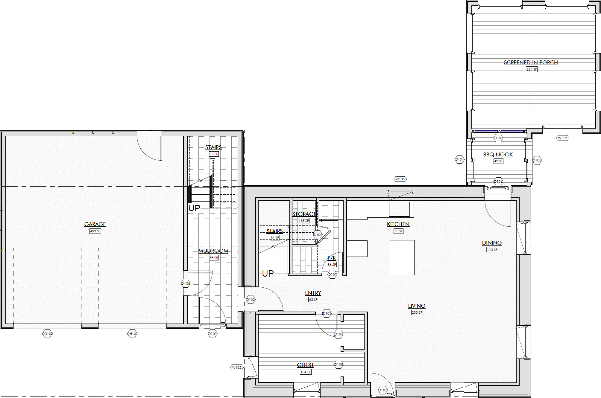
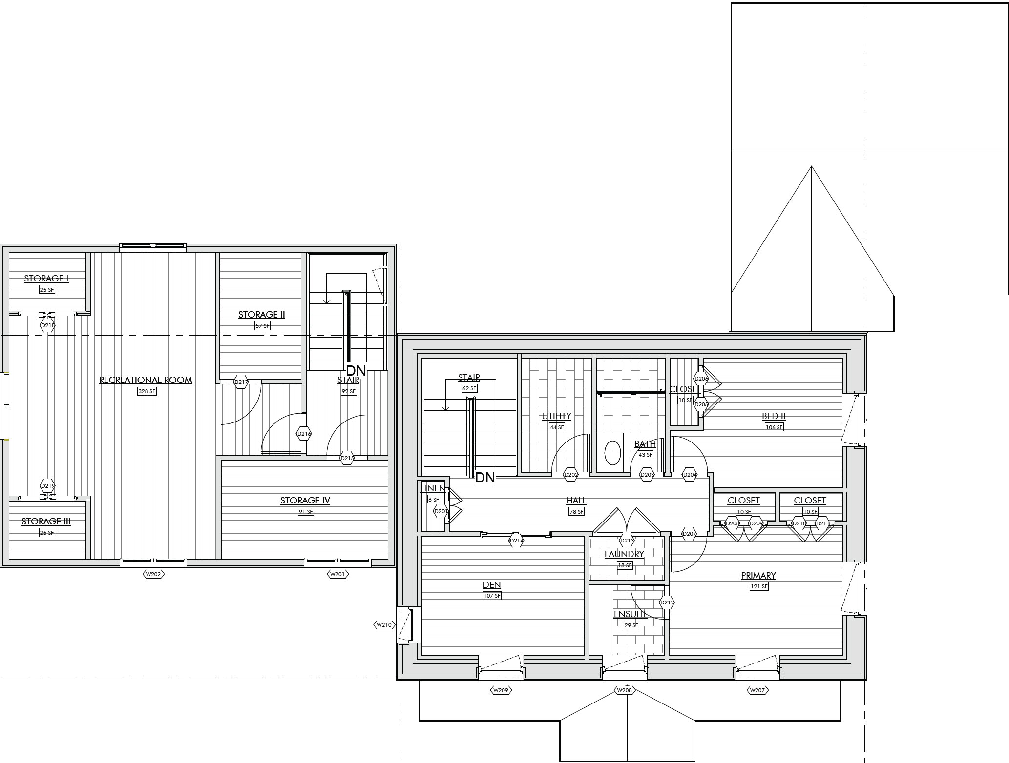
The Prairie Smoke home combines timeless design with advanced building performance, giving you a spacious two-storey layout that adapts seamlessly to family life. With four bedrooms, 2.5 baths, and a connected garage suite, it delivers the extra room modern households need without the inefficiency of traditional builds. Large, thoughtfully placed windows brighten every corner with natural light, while the open kitchen and living areas make it easy to gather, host, and enjoy everyday moments.

Behind the clean architectural lines, Quantum Passivhaus panels lock in comfort and efficiency year-round. Engineered airtightness and high R-values keep heating and cooling costs dramatically lower while ensuring stable indoor temperatures in every season. With Prairie Smoke, you gain not just a beautiful home, but one that’s built to perform—delivering lasting comfort, healthier air, and peace of mind for decades to come.

Family-Ready Design – Four bedrooms and a flexible layout provide space to grow, work, and relax without compromise.
Naturally Bright – Well-placed windows fill the home with daylight, creating warm, inviting interiors while maintaining energy efficiency.
Year-Round Comfort – High-performance panels and airtight construction keep temperatures steady, reducing costs and ensuring healthier indoor air.
Square Footage: 2,981 sq. ft.
Garage : 1,288 sq. ft.
Bed / Bathrooms : 3 bedrooms, 1 den, 2.5 bathrooms
Stories: 2 storeys
Panel System : QP 16" Wall Panels with service cavity
Air Tightness : 0.6 ACH50
R-Value: R-61 (walls), R-80 (roof)


Ready to Build Your Dream Home?

Start with a model you love. Customize it to fit your life. Move in sooner than you think.
Slash energy bills by up to 90% – Superior insulation and airtight design
Build up to 75% faster – Precision off-site manufacturing
Future-proof your home – Exceeds 2030 energy standards now