Wood Lily
Live in Comfort,
Save for Life.
The Wood Lily delivers up to 90% energy savings, year-round comfort, and lasting value—crafted to meet your family’s needs today and for decades to come.

WOOD LILY

Modern Two-Storey energy efficient House for Energy-Smart Living

The Wood Lily is designed for families who want lasting comfort, dramatic energy savings, and a home built to exceed tomorrow’s standards.

Featuring Quantum Passivhaus’ THX Thermal Extreme panels (R-61, 0.6 ACH50), it delivers up to 90% less heating and cooling energy use compared to a code-built home. Its modern layout offers bright, open living spaces and exceptional cold-climate performance—keeping your family warm in winter and cool in summer, all while reducing costs for decades.

Up to 90% lower energy use – Cut heating and cooling costs for decades
Year-round comfort – Stable indoor temperatures and fresh, filtered air
Future-ready – Exceeds 2030 energy-efficiency standards today
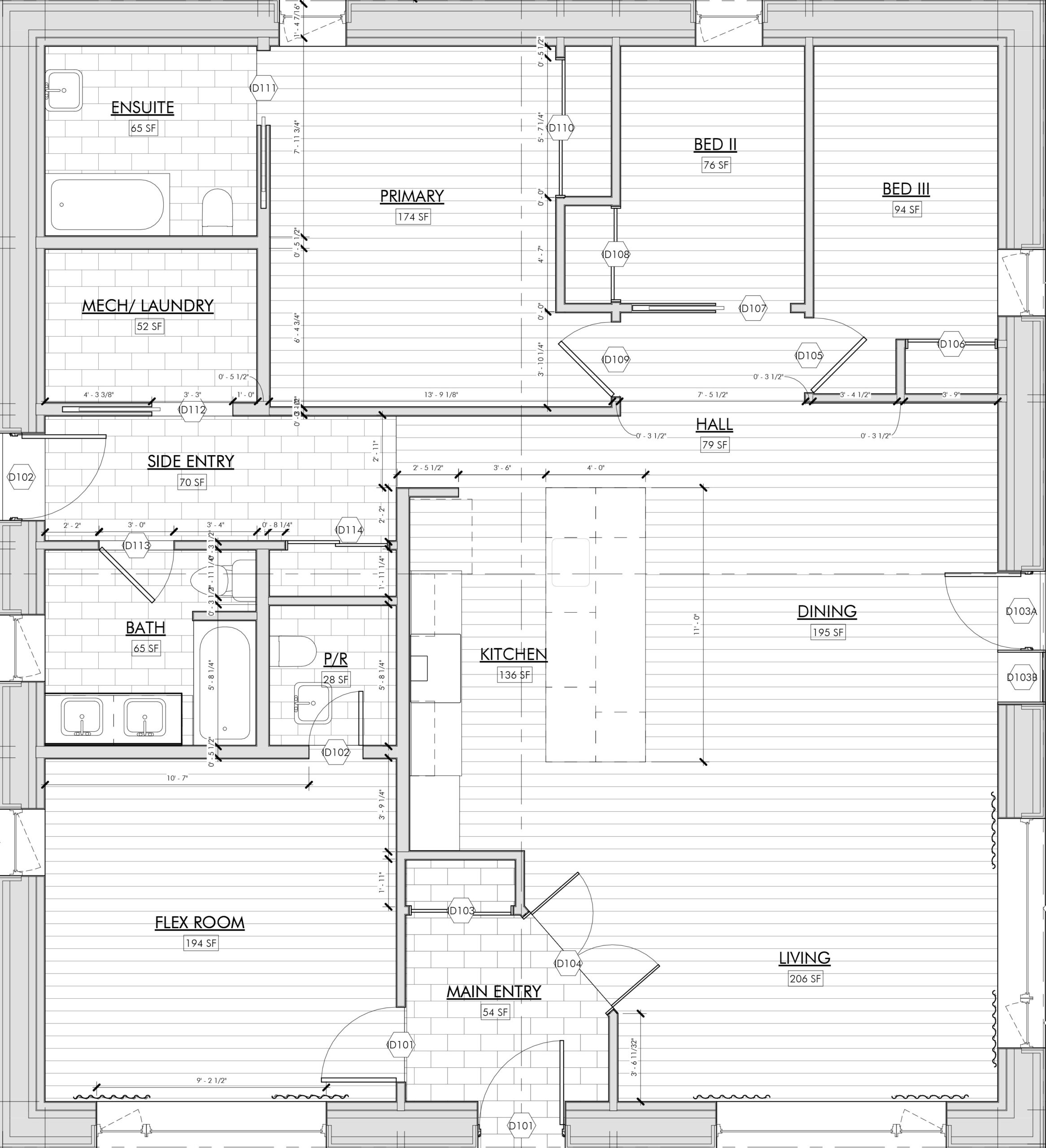
Square Footage: 2,469 ft²
Bed / Bathrooms : 3 bedrooms, 2.5 bathrooms
Stories: Bungalow
Panel System : THX Thermal Extreme
Air Tightness : 0.6 ACH50
R-Value: R-61


Ready to Build Your Dream Home?

Start with a model you love. Customize it to fit your life. Move in sooner than you think.
Slash energy bills by up to 90% – Superior insulation and airtight design
Build up to 75% faster – Precision off-site manufacturing
Future-proof your home – Exceeds 2030 energy standards now