Sweetflag— Small footprint. Maximum efficiency.
Compact Comfort.
Big Performance.
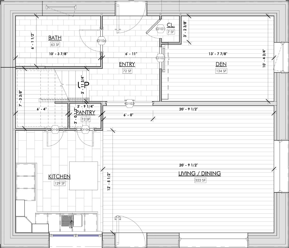
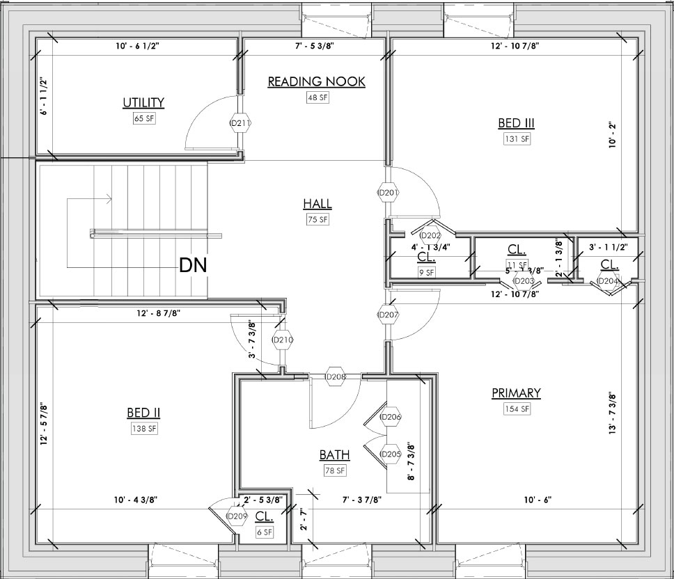
The Sweetflag home proves that great design doesn’t need excess. With three bedrooms, two baths, and an intelligently planned layout, it offers everything a family needs for modern living in a smaller footprint.

Sweetflag

Smarter design for everyday living.

The Sweetflag home blends compact efficiency with exceptional comfort, delivering high performance in a refined, modern package. Its two-storey layout maximizes usable space with three bedrooms, two baths, and an open-concept living area perfect for connection and calm. Designed with Passive House precision, it offers superior insulation and airtightness—ensuring consistent warmth, quiet interiors, and low energy bills through every season.

Behind the clean architecture, Quantum Passivhaus panels provide the strength and stability of factory-engineered construction while maintaining the beauty of natural materials. With Sweetflag, you gain more than a home—you gain peace of mind, comfort, and long-term value that endures for decades.

Family-Friendly Layout — Three bedrooms and thoughtful open spaces for everyday living and entertaining.
Naturally Efficient — High R-values and airtight design reduce costs while improving comfort.
Lasting Performance — Prefab precision ensures quality, durability, and sustainable living for generations.
Square Footage: 1,055 sq. ft.
Bed / Bathrooms : 3 bedrooms, 2 bathrooms
Stories: 2 storeys
Panel System : QP 16" Wall Panels with service cavity
Air Tightness : 0.6 ACH50
R-Value: R-61 (walls), R-80 (roof)


Ready to Build Your Dream Home?

Start with a model you love. Customize it to fit your life. Move in sooner than you think.
Slash energy bills by up to 90% – Superior insulation and airtight design
Build up to 75% faster – Precision off-site manufacturing
Future-proof your home – Exceeds 2030 energy standards now